73460 Notre-Dame-des-Millières
La salle des fêtes est située au centre du village avec un parking tout proche. Elle est ouverte à la location pour les particuliers de la commune et hors commune, aux associations et à différentes activités (commerciales, entreprises…).
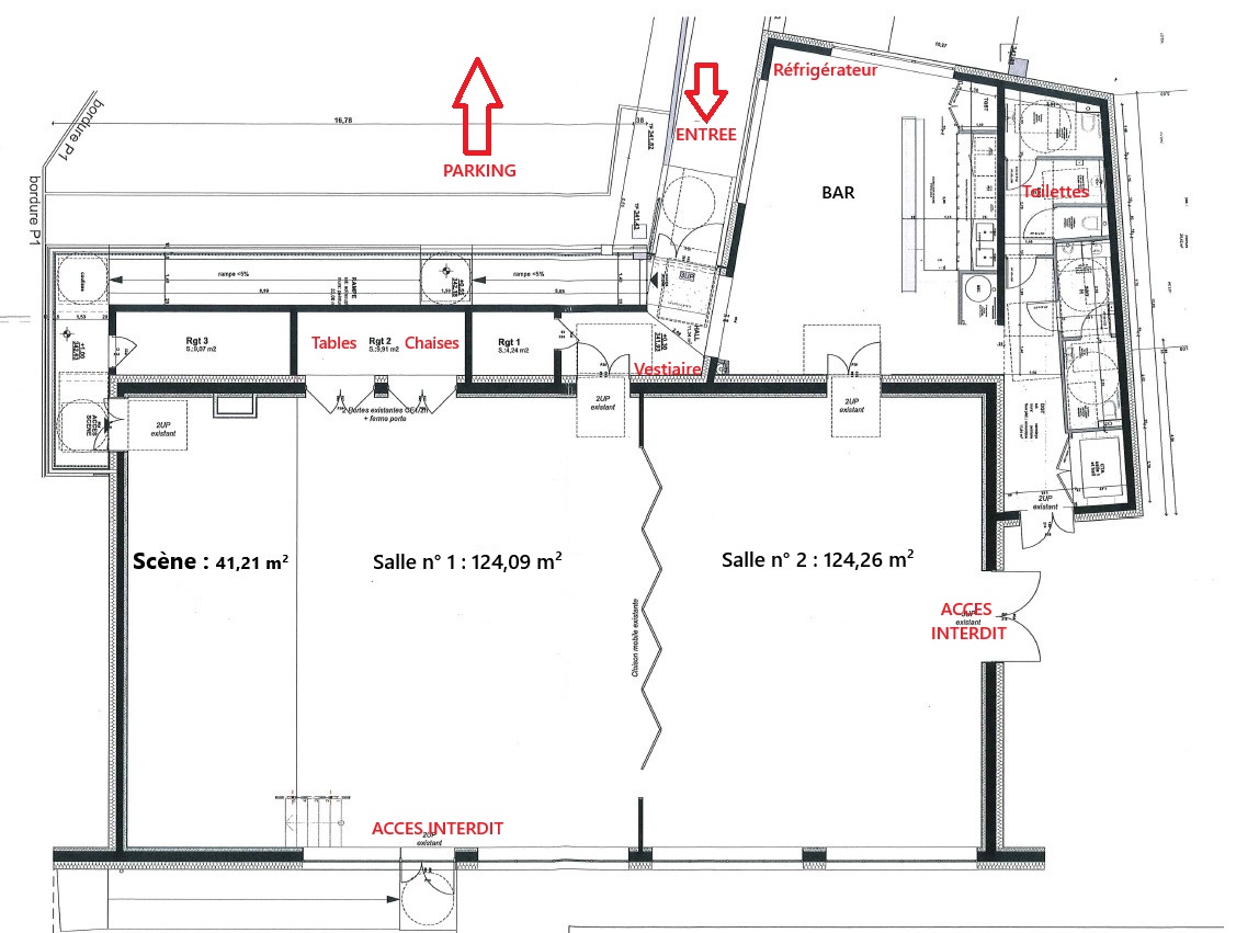
Vous avez la possibilité de louer la totalité ou bien de diviser la salle en deux parties.
Réservations :
Pour toute demande d’informations et connaître les disponibilités de la salle des fêtes, merci de bien vouloir contacter la mairie au 04.79.38.40.95 (voir le calendrier Mensuel des disponibilités en pièce jointe ci-dessous).
Toute demande de réservation passera obligatoirement par une demande écrite en cliquant ici : formulaire de demande de réservation ou bien en venant le chercher en mairie, après quoi vous nous transmettrez ce document dûment complété à : mairie@notredamedesmillieres.fr
Nota: À tout moment, la commune reste PRIORITAIRE de l'utilisation des salles communales, au titre de l'intérêt général, même si celles-ci ont été préalablement réservées.
Pièces demandées : justificatif de domicile et assurance au nom du contractant.
Si votre demande est validée, merci de bien vouloir nous fournir les pièces suivantes:
· Le règlement – salle des fêtes approuvé dûment complété (vous sera remis lors de votre passage en Mairie - également disponible en pièce jointe ci-dessous)
· Attestation d’assurance valable pour le(s) jour(s) de votre réservation
· Chèque(s) de caution (à l’ordre du TRESOR PUBLIC)
· Chèque de location (à l’ordre du TRESOR PUBLIC)
· Prendre contact avec la personne qui sera chargée de l’état des lieux entrant/sortant
· Contrat de location dûment complété (vous sera remis lors de votre passage en Mairie)
Règlement et tarifs de location :
Voir règlement location salle des fêtes & tableau des tarifs
Plan de salle :
Voir pièce jointe, ci-dessous
Présentation de la salle polyvalente :
Voir diaporama, ci-dessous

Pièces jointes
Coordonnées du lieu
Responsable
-
Adresse
Chef Lieu
73460 Notre-Dame-des-Millières
Téléphone(s)
Adresse email
Site Internet
-
Réseaux sociaux
-